Нови артикули
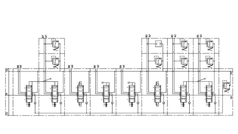
ХИДРАВЛИЧЕН КЛАПАН HIAB 8XPC70 + 2X ДЖОЙСТИК - ЕЛЕКТРИЧЕСКО УПРАВЛЕНИЕ 12V

Общо описание:
Ръчният или механичен хидравличен клапан РC70 е предназначен за разпределение и контрол на работния поток между хидравличната помпа и хидравличните цилиндри.
Хидравличният клапан се използва за горски ремаркета – (HIAB).
Сглобен в блок от 8 сегмента.
Работа:
Всички хидравлични клапани са оборудвани с предпазен клапан. В неутрална позиция (лостът в средата), маслото циркулира през клапана. Когато лостът се премести на една или друга страна, хидравличният клапан предизвиква движението на цилиндъра или въртенето на хидравличния мотор в една или друга посока. При освобождаване на лоста, той автоматично се връща в неутрална позиция, хидравличният мотор или цилиндър спират в текущата позиция и маслото отново циркулира през клапана. Възможно е да се използва т.нар. 'затворен център' елемент, който променя клапана така, че в неутрална позиция маслото да не циркулира през клапана или такъв клапан вече да не тече. При използване или свързване на други клапани, е необходимо да се използва 'carry over' елемент, който позволява подаване на масло за други клапани.
За клапани с шпиндели за плаваща функция, той позволява свободен поток на масло за цилиндъра, което последователно означава, че цилиндърът се движи свободно (или снегоринът се адаптира към терена).
Клапаните с шпиндели за едностранни цилиндри са предназначени за едностранни цилиндри.
Конструкция:
РC70 е моноблоков разпределителен клапан. Изработен е от чугун EN-GJL300. Шпинделите са изработени от въглеродна стомана и са хромирани.
Свързвания:
Шпинделът е завинтен с два винта M10.











